Особенности установки шумозащитных окон
Негерметичная установка окна способствует повышению уровня шума, поступающего с улицы
Поэтому при установке шумозащитных окон важное требование – плотное прилегание уплотнителей из резины
Необходимо, чтобы пластиковое окно очень точно подходило к проему
Это важно потому, что монтажная пена обладает низкими звукоизолирующими свойствами. Поэтому ее должно быть минимум
Также слой монтажной пены нужно закрыть с обеих сторон штукатуркой, иначе она быстро потеряет свои свойства под влиянием солнечных лучей. Неприятное последствие – полное ее разрушение и появление сквозных отверстий.
После того как будут установлены окна ПВХ, откосы нельзя заделывать гипсокартоном. При применении этого материала между ним и стеной образуются полости, которые затем будут резонировать. Так эффект шумоизоляции значительно снижается.
Лучший вариант отделки откосов – это применение так называемой «теплой» штукатурки. Ее использование повышает сопротивление теплопередаче стены рядом с проемом окна. При использовании обычной штукатурки из цемента и песка при морозах на откосах будет образовываться конденсат, а это угроза возникновения плесени.
Если в настоящее время невозможно заменить обычное окно на пластиковое, то можно тщательно заделать все щели по периметру рамы. Для стекол в таких ситуациях применяется силиконовый герметик. Подобные меры дают возможность увеличить звукоизоляцию на 10 децибел. Но они не являются долговременными. Поэтому рекомендуется при проживании рядом с шумными улицами города при первой же возможности сменить старые оконные блоки на шумозащитные пластиковые окна.
Экологичность и антиаллергенность
Газобетонные блоки не выделяют в воздух каких-либо токсинов, произведены из натуральных компонентов. Исключением является лишь алюминиевая пудра, которая вводится в состав в качестве газообразователя, но и она соответствует всем требованиям и стандартам. Поэтому блоки из газобетона считаются полностью экологичными и безопасными для здоровья, жизни людей.
Даже при высоких показателях влажности и температуры по блокам не распространяются бактерии, грибки, плесень, поэтому материал не нужно покрывать специальными антисептиками
Но важно защитить от влаги, которая сама по себе может разрушать структуру блока

Сложности и ошибки
Возможные проблемы:
-
Самые большие сложности возникают в процессе выбора модели звукоизоляционной системы.
Этому должно предшествовать тщательное исследование по источникам шума и расчет возможного понижения, с использованием того или иного метода.
Если этого не выполнить, в результате солидные средства будут потрачены зря.
- При звукоизоляции помещений, расположенных в панельных домах покупка дешевых материалов без сертификатов качества или не имеющий акустических характеристик. Например, многие устанавливают дешевый пенопласт, который не способен защитить от шума.
- Неправильная технология укладки с нарушением последовательности слоев пирога, без установки виброразвязки и звукопоглощающего слоя.
Потолок как в кинозале
Существуют ситуации, когда звукоизоляционной защиты пола над комнатой недостаточно для обеспечения желаемого уровня тишины. Например, если вы решили устроить в одной из комнат домашний кинозал, или хотите надежно изолировать от шума свой рабочий кабинет, можно прибегнуть к монтажу подвесного потолка. Для этого существуют специальные звукоизоляционные потолочные плиты с коэффициентом NRC свыше 0,6-0,7. Их изготавливают из минеральных волокон, стекловаты или базальтовой ваты. При сравнительно невысоком весе и плотности (от 80 до 200 кг/м2) такие панели обеспечивают хорошую защиту от шума, при этом они влагостойки, нетоксичны и пожаробезопасны. Чтобы придать потолку, зашитому акустическими плитами, более привлекательный вид, их покрывают стеклохолстом, окрашенным, обычно, в белый цвет. Хотя здесь все ограничивается лишь вашей фантазией.

Звукоизоляция
Материалы, которые
имеют отталкивающие свойства для звуковых волн, называют звукоизоляцией.
Основная задача звукоизоляционного стройматериала не дать возможность звуковым
волнам проникать через стену в середину помещения. Основной показатель
звукоизащиты заключается в массе поверхности, которая изолируется. Если, к
примеру: взять бетонную стену и конструкцию из двойного слоя кирпича, то масса
второй будет несколько выше, а значит сама конструкция будет эффективней
удерживать звуковые волны. Характеристикой
звукоизоляции является эффективность.
@ProAntiShum
С применением
звукоизоляционных плит, рулоном или полотен можно добиться оптимального результата
даже для конструкций с тонкими стенами. Оценка отражения конструкции к
шумоизоляционному материалу называют индексом звукоизоляции. Такая величина
измеряется в децибелах, и она варьирует в среднем от 52 до 60 дБ.
Звукоизолирующими стройматериалами можно считать кирпичную кладку, бетонные
конструкции и изделия из гипсокартона.
Этапы звукоизоляции потолков
- Устанавливается вспомогательная потолочная систем — натяжная, подвесная, подшивная.
- Для установки натяжных потолков используются кронштейны, на которые натягивают ткать или пленку.
- Металлический каркас, обшиваемый гипсокартоном, используют при установке подшивного потолка.
- Для подвесных потолков также используют каркас из металла, но в него вкладывают плиты для шумоизоляции или минеральную вату (она должна быть тщательно изолирована т.к. вредна для здоровья).
- Если потолок обшивают гипсокартоном, то под него подкладывают звукоизоляционный материал, а внешнюю сторону покрывают краской или обоями. При этом высота помещения уменьшается на 15-17 см.

Рассмотрим звукоизоляцию под подвесной потолок
Простыми словами нужно собрать новый потолок, который не связан жесткими связями с плитой перекрытия. Осуществляется это за счет специальных виброподвесов с Силомером.

В данных подвесах конструкция сделана так, что бы метал, который крепится к потолку, никак не взаимодействует с металлом, который крепится к металлическому профилю. Так же за счет того что он эластичный (демпфирующий) подвес срабатывает как амортизатор в автомобиле и за счет этого гасит ударную волну сверху.
По периметру потолка направляющий профиль обязательно крепится через демпферную ленту в 2 слоя. Для того что бы металлический профиль не примыкал жестко к стенам и не передавались на него вибрации.

Далее делается обрешетка. Все пустое пространство обязательно заполняется базальтовыми волокнистыми плитами. Они работают как звукопоглощающий материал, защищая от воздушного шума (голоса, крики, телевизор). Звукопоглощение происходит когда соблюдена формула масса — упругость — масса. Между плитой перекрытия и финишными слоями ГВЛ и ГКЛ должен быть обязательно волокнистый, поглощающий материал.

И последним этапов вся конструкция зашивается ГВЛ (гипсоволокнистый лист) и ГКЛ (гипсокартонный лист). Они работают по принципу массы. Чем тяжелее финишный слой, тем лучше работает звукоизоляция. Поэтому зашивается все в 2 слоя.

Следующий вид звукоизоляции – акустическая, т.е это натяжной потолок со специальной перфорацией, структура и размер которой не дают переотражаться звуковым волнам. В результате шум гасится в помещении. Схема действия подобных потолков примерно такова, как показано на следующем фото:

Перфорированное акустическое полотно производится исключительно из ткани. Основа – полиэстровая сетка, которую заливаю полиуретаном. На эту ткань наносят 250 тысяч микропроколов, благодаря которым она становится звукопоглощающей мембраной. Тканевая основа намного прочнее пленки ПФХ. Можно, конечно, сделать перфорацию и на пленке, но потолок от этого потеряет часть своей прочности, поскольку пленка тонкая и достаточно нежная. Подобного вида акустические потолки предлагают большинство крупных производителей. Наиболее широким ассортиментом представлена продукция компаний Clipso и Cerutti, кстати, и отзывы покупателей говорят в пользу этих производителей.
Потолочная акустическая система от фирмы Clipso комплектуется из натяжного потолка системы акустик, крепежного багета собственной марки из поливинилхлорида сложного сечения и звукопоглощающего слоя с применением плит «Шуманет-БМ». Данная потолочная система наиболее эффективно устраняет эхо и подходит для людей, привыкших смотреть телевизор с акустическим комфортом, не нарушая спокойствие соседей. Применяется система в конференц-залах, офисах, служебных помещениях для оптимизации звука.
Порядок работ по звукоизоляции

При производстве работ по ограничению или избавлению от шума в многоквартирном доме, для получения максимального эффекта, желательно профессионально выполнить замеры и расчеты. Для такой работы лучше всего привлечь специалистов из акустической лаборатории, которые смогут установить месторасположение, природу и интенсивность источника постороннего шума.
Также специалисты выполнят расчеты, которые покажут, на сколько децибел следует сделать снижение шума в комнате, чтобы добиться максимального комфорта. При необходимости, составят проект, который позволит выполнить необходимый фронт работ, не тратя средства на лишние или неэффективные меры.
При проведении работ в многоквартирном доме по защите квартиры от шумных соседей сверху, следует помнить, что существует ограничение как на виды работ, так и на перечень конструкций, с которыми можно работать.
Если человек, желающий сделать шумоизоляцию потолка или стен, нарушит требования нормативно-правовых документов или правила Жилищного Кодекса, то за подобные работы можно понести штрафные санкции.
Если, имея на руках проект или расчеты с эскизами, владелец квартиры или дома решит привлечь к работам профессиональных мастеров или подрядчика, то ему останется только дождаться окончания работ и оценить полученный результат.
В том случае, когда он решит сделать работы самостоятельно, то помимо наличия необходимого опыта и навыков ему придется также выполнить все работы последовательно, в противном случае все усилия и затраченные средства могут быть потрачены впустую.
В большинстве случаев, в многоквартирных домах стены и потолок имеют стыки, которые следует зашпатлевать, а поверхности тщательно выровнять. Все рабочие поверхности перед началом работ должны быть высушены, все работы можно проводить только при положительной температуре, желательно не ниже 25 градусов Цельсия.
Перед установкой панелей или направляющих реек следует покрыть стены специальной паропроницаемой пленкой, которая обеспечит циркуляцию воздуха и не допустит попадание влаги в конструкцию.
Наличие такой пленки в сборной конструкции (при использовании направляющих реек и гипсокартона) является необходимой, так как без нее внутрь может проникнуть конденсат, который впоследствии спровоцирует появление грибка.
При проведении монтажных работ следует пользоваться инструкциями и рекомендациями производителя материалов. На всех этапах работ помещение должно проветриваться, чтобы обеспечить плавное высыхание установленных конструкций и материалов, не допуская их усушки и деформации.
Нормативные требования
Про строительные нормы и требования (СНиП) было сказано уже неоднократно. Однако не все знают, что они регламентируют и зачем нужны. Иногда в доме настолько некачественная звукоизоляция, что кажется, будто застройщики жилых домов тоже не подозревают о назначении СНиП. А они необходимы для того, чтобы жилье было безопасным и комфортным. Касательно звукоизоляции – это защита от шума.
Свод правил, регулирующих деятельность застройщиков, устанавливает условную «норму» шума и максимально допустимые показатели.

Обязательные требования для проектирования, строительства и эксплуатации жилых (и не только) помещений разработаны на основе ГОСТов. Положение содержит много пунктов и подпунктов, из которых для владельца квартиры важны всего три:
Допустимый уровень шума. Он понимается как уровень, который не вызывает у жильцов квартиры беспокойства, не оказывает физического влияния на состояние организма и его функциональные системы, включая слуховые анализаторы. Допустимым он считается в течение всего дня.
Предельно допустимый уровень. К сожалению, предельный – не то же самое, что «не раздражающий». Это такой уровень, который в рабочие часы (до 22:00) не вызывает у окружающих заболеваний и нарушений здоровья. Соседи снизу имеют право стучать молотком в определенное время суток. С этим придется мириться.
Изоляция ударного и воздушного шума. СНиП разделяет их на две отдельные категории, но без специалиста трудно разобраться в показателях и формулах
Важно лишь то, что по нормам допустимый уровень шума в дневное время составляет 39–49 Дб, в ночное 30–35.


Качественное перекрытие пола способно изолировать 50–55 Дб звука. Крики взрослого человека или плач малыша – это 70–75 Дб. Соответственно, нужна дополнительная защита. В среднем звукоизолирующие материалы дают возможность заглушить 20–30 Дб шума при правильном монтаже.
Также в СНиП зафиксированы требования к межэтажным перекрытиям:
- Отсутствие жёстких связей между полом и несущими конструкциями здания. То есть, стяжка должна быть плавающей, без звуковых мостиков.
- Основание пола из бетона или дерева отделяется от стен по контуру на ширину 1–2 см.


- Плинтус не должен быть соединительным звеном между полом и стеной. Он крепится или к основанию стены или только к основанию пола.
- Монолитная (мокрая) стяжка монтируется на гидроизолирующем слое.
- Плитные материалы укладываются вплотную, без зазоров на стыках.
- При отсутствии запаса для звукоизоляции пола (воздушной прослойки между стяжкой и покрытием) нужно использовать материалы на вспененной основе. Это касается мягкого покрытия в виде линолеума и ковролина. Их основание не должно быть волокнистым.
- Межэтажные перекрытия между жилыми и шумными помещениями разделяют толстой монолитной конструкцией со звукоизоляцией 57–62 Дб.


Звукоизоляция с помощью пеноблока
Широкое развитие промышленного и жилищно-гражданского строительства с новыми технологиями монтажа требует применения эффективных звукоизолирующих материалов. Экономически важным является применение строительных материалов, получаемых из недефицитного дешевого сырья, но обеспечивающего вместе с тем достаточно высокие показатели звукоизоляции при использовании в ограждающих конструкциях. К числу таких материалов относятся ячеистобетонные материалы.
Общим свойством, обусловливающим специфику и выбор применимости конструкций из ячеистых бетонов, является содержание
значительного количества пор. Если цементный камень специально не поризуется, то поры содержаться только в заполнителе. Введение воздухововлекающей или газообразующей добавки в цементное тесто позволяет понизить объемную массу легких бетонов с пористым заполнителем.
Вследствие пористости существенно улучшаются акустические свойства ячеистых бетонов по сравнению с более плотными материалами. Применение ячеистобетоиных материалов в стеновых конструкциях с открытой или закрытой пористостью позволяет увеличивать их индекс изоляции по сравнению со стенами из однородных плотных материалов на 2…5 дБ.
Основной, определяющей акустические свойства характеристикой, является по терминологии СНиП 23-03-2003 «Защита от шума» коэффициент эффективности К. Здесь К — коэффициент, учитывающий относительное увеличение изгибной жесткости ограждения из бетонов на легких заполнителях, поризованных бетонов и т.п. по отношению к конструкциям из тяжелого бетона с той же поверхностной плотностью.
Для сплошных ограждающих конструкций плотностью у = 1 800 кг/м и более К = 1.
Для сплошных ограждающих конструкций из бетонов на легких заполнителях, поризованных бетонов; кладки из кирпича и пустотелых керамических блоков >средненный по маркам материала коэффициент К определяется по СНиП и имеет значения от 1,1 до 1,7, а для ячеистых бетонов от 1,5 до 2. Коэффициент К тесно связан с динамическим (начальным) модулем упругости материала Ед зависимостью для конструкций сплошного сечения из легкого бетона.
К = 0,72(Ед/р3)1/2,
где Ед — динамический модуль упругости легкого бетона Па;
р — плотность ячеистого бетона, кг/ м3 .
Для иллюстрации вышесказанного в таблице 1 приведены данные по звукоизоляции конструкций из газобетонных материалов марок по плотности Д600 и Д800.

Из таблицы 1 видно, что для наиболее употребительных в массовом строительстве толщин перегородок от 100 до 125 мм индекс изоляции воздушного шума Rw составляет от 29 до 43 дБ. В соответствии с требованиями строительных норм для жилых зданий требуемый индекс изоляции должен составлять 41…50 дБ
(внутриквартирные перегородки). Поэтому для обеспечения норм необходимо применять ограждения толщиной не менее 125…250 мм, а не 80…100 мм как это практикуется сейчас. Единственным альтернативным вариантом усиления звукоизоляционных качеств ограждений из ячеистых бетонов малых толщин является совместное применение дополнительных двухсторонних облицовок из Гипрока по слою минеральной ваты толщиной не менее 40 мм.
Для наружных стен звукоизоляция должна быть не менее 35 дБ, а для межквартирных 50-54 дБ, толщины которых можно получить из таблицы 1.
Разработанные современные методики оценки звукоизоляционных качеств ограждающих конструкций из ячеистобетониых материалов, основанные на экспериментальных данных специализированных Испытательных Центров, позволяют с достаточной уверенностью использовать их для обеспечения благоприятного акустического режима в жилье.
Побочные эффекты звукоизоляции квартиры

К побочным эффектам от проведения комплекса работ по снижению шума в многоквартирном доме можно отнести следующие.
- Теплоизоляция. Поскольку все материалы, используемые для поглощения или рассеивания шума, имеют пористую основу, в которой находится воздух, являющийся плохим проводником холода, то установка шумоизоляции стен позволит изолировать не только звук, но и холод, проникающий в комнату от стен и потолка.
- Акустический эффект. Если грамотно звукоизолировать всю площадь комнаты, то можно добиться хорошего акустического эффекта. В помещении станет возможным установка качественной акустической системы, прослушивание которой в не изолированном помещении не создаст должного эффекта, так как часть звуковых частот будет поглощена поверхностями, а часть смешается с посторонними шумами.
- Испарения и попадание частиц материалов в воздух. Это негативный эффект, который может возникнуть при некачественно проделанных работах или при использовании некачественных материалов.
При выборе производителя или поставщика также не лишним будет поинтересоваться о продукции и репутации компании, ознакомиться с отзывами потребителей, а в случае покупки потребовать сертификат, удостоверяющий качество продукции.
Цена работ
Общая стоимость звукоизоляционных работ с материалами довольна значительна и составляет от 2000 до 4000 м2, причем большая часть приходится на приобретение утеплителя и расходных материалов.
Работы на монтаж системы звукоизоляции в панельных домах зависят от выбранной схемы, этажности дома, технического состояния панелей и типа утеплителя.
Средние расценки на работы:
| Наименование работ | Расценка руб. за 1м2 |
| Внешняя звукоизоляция вентилируемый фасад, минвата | 1650 |
| Мокрый фасад Пеноплэкс | 1150 |
| Внутренняя каркасная звукоизоляция несущей панельной стены | 800 |
| Внутренняя каркасная изоляция панельной перегородки | 670 |
Виды клапанов для окон ПВХ
Приточные клапаны различаются по конструкции и способу управления — от этого зависит их стоимость, эффективность, сложность установки и обслуживания.
Ручные и автоматические
Поток воздуха, идущий через клапан, в зависимости от конструкции устройства, может быть постоянным или регулируемым. Второй вариант более удобен в использовании, поэтому гораздо популярнее первого. Регулировка интенсивности проветривания может осуществляться вручную или автоматически.
Ручной предполагает наличие специальной задвижки, которая открывает и закрывает доступ воздуха в помещение и регулирует пропускную способность устройства.
Плюсы:
- низкая стоимость;
- простая конструкция;
- возможность полностью перекрывать доступ воздуха с улицы и открывать клапан, когда нужно.
Минусы:
- для эффективной работы нужно участие человека, чтобы вовремя открыть и закрыть задвижку;
- человек управляет им, полагаясь на интуицию и собственные ощущения, без учета влажности воздуха.

Клапан с автоматическим управлением способен выполнять свою функцию без участия человека, проветривая помещение либо на определенный объем воздуха, либо до достижения комфортных показателей влажности.
Плюсы:
- клапан работает, даже если никого нет дома;
- достаточно выставить нужные настройки и можно забыть об устройстве;
- устройство способно постоянно поддерживать хороший микроклимат в помещении.
Минусы:
- высокая стоимость;
- некоторые модели не имеют возможности для полного отключения вентиляции.
Виды устройств по конструкции
Конструкция приточного клапана определяет способ его установки. Есть несколько видов:
- фальцевые (без фрезеровки);
- щелевые (с фрезеровкой);
- накладные;
- встроенные в ручку.
Фальцевый приточный клапан — самый простой в установке. Его монтируют в пространство между створкой и рамой. В комплект входит более тонкий уплотнитель, который ставят только в месте крепления клапана, таким образом, получается небольшая щель, длиной от 17 до 40 см. Клапан состоит из двух частей: воздухозабора (козырька), который устанавливается на улице, выпускной части — она монтируется изнутри. Поток воздуха можно регулировать. Пропускная способность устройства — от 5 м³/час.
Плюсы:
- невысокая стоимость;
- простой монтаж своими руками;
- при необходимости легко демонтировать и вернуть створке герметичность.
Минусы:
- сравнительно низкая пропускная способность;
- подходит только для окон с открывающимися створками.
Фальцевый клапан.
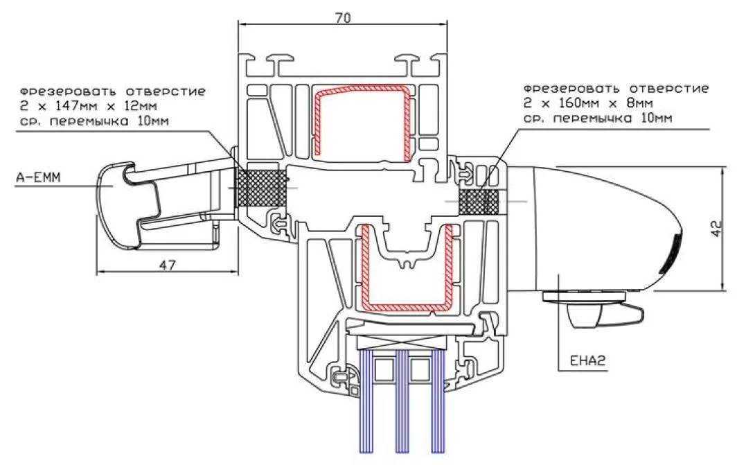
Есть более сложные в монтаже устройства — щелевые, для их установки необходимо фрезеровать створку. Они подходят для поворотно-откидных и глухих створок. Но во втором случае придется вырезать отверстия и в металлической армировке, которая расположена внутри рамы.
Такие конструкции могут состоять из одного цельного блока или двух раздельных: один из них устанавливается на улице, второй — в помещении. Для их монтажа требуется сделать отверстия вытянутой формы в верхней части наплава створки и наплава рамы. Для этого желательно иметь шаблон.
Щелевой клапан
Пропускная способность щелевого клапана — до 40 м³/час. Этого достаточно, чтобы в помещении, где проживают два человека, всегда был свежий воздух.
Плюсы:
- высокая пропускная способность;
- подходит для любых окон, в том числе глухих;
- большинство моделей оборудованы системами для сохранения звукоизоляции и фильтрами.
Минусы:
- стоит дороже, чем фальцевый;
- для установки необходимо нарушить целостность рамы и створки;
- сложный в монтаже — установку стоит доверить специалистам.
Принцип работы клапана установленного с фрезеровкой.
Наиболее эффективный приточный клапан — накладной или встроенный. Он способен пропускать до 100 м³/час свежего воздуха. Для жилых помещений это слишком интенсивный поток, поэтому такие устройства используются в крупных и многолюдных помещениях. Их установку необходимо запланировать до монтажа окон, так как прибор встраивается в пространство для стеклопакета и размер створки необходимо подогнать под габариты устройства для вентиляции.

Еще один вид устройств для вентиляции — оконные ручки с приточными клапанами. По сути это те же щелевые, но пропускная способность их гораздо ниже, так как поток идет не через цельную щель в створке, а по трубкам, которые соединяют улицу с помещением.
Для установки необходимо снять старую ручку, просверлить сквозные отверстия по шаблону, вставить трубки и зафиксировать части ручки. Поток воздуха регулируется задвижкой.
Оконная ручка с вентиляцией.
Штукатурка газобетона
Еще один вариант улучшения звукоизоляции газобетона – это оштукатуривание с двух сторон. Применяется при тонких стенах, совместно с арматурой придает дополнительную прочность. Оштукатуривание предотвратит попадание влаги внутрь блоков, отделочный материал должен защитить материал от разрушения с двух сторон.
Один из минусов газобетона – это его низкая влагоустойчивость. В том случае, когда он является единственным строительным материалом, проводится штукатурка снаружи и внутри здания. Штукатурку для газобетона подбирают особенно тщательно, ведь она служит не только для сохранения его свойств, но и их улучшения.
Стыки
При проектировании стыков, в том числе между перегородками и несущими конструкциями, должна полностью исключаться вероятность появления трещин, которые негативно сказываются на качестве звукоизоляции.
Заполнение стыков между перекрытиями и стенами осуществляется с использованием бетона или раствора, при этом на стыке должны иметься необходимые полости, которые предстоит заполнить составом на основе цемента. Кроме того, требуется максимально возможно ограничить возможное перемещение конструкций, для чего отдельные элементы свариваются, крепятся с использованием шпонок и так далее. В свою очередь все используемые для соединения детали не должны становиться препятствием на пути заполнения полости и способствовать появлению пустот. Оптимальным материалом для выполнения подобных работ служит расширяющийся бетон.
В процессе ведения проектных работ на объектах с использованием сборных конструкций, требуется предусмотреть такую конфигурацию стыкуемых деталей, которая обеспечит максимальное удобство использования герметизирующих составов (в тех случаях, когда они предусмотрены нормами строительства).
Как сделать шумоизоляцию в квартире?
Неплохой защитой от шума являются толстые бетонные стены и качественные стыки перекрытий. Но в панельных домах, к сожалению, такая защита полностью отсутствует. Поэтому большинство жителей панельных высоток задумываются над вопросом, как сделать шумоизоляцию в квартире. Для решения этой проблемы необходимо изолировать от проникновения шума не только стены, но и потолок и пол, используя для этого звукопоглощающие материалы.
Также нужно учесть, что шум может проникать в квартиру следующими путями:
- через розетки и монтажные коробки;
- через стояки водопровода и отопления;
- через стыки в стенах, потолке и поле;
- через окна и входные двери.
Как же можно выполнить шумоизоляцию квартиры своими руками, рассмотрим подробнее.
Материалы для звукоизоляции квартиры
Методы борьбы с шумом зависят от используемых материалов. Это может быть гипсокартон, потолочные панели, минеральная вата, рулонные материалы.
Так как посторонний шум часто заставляет человека нервничать, не дает сосредоточиться и даже может стать глобальной жизненной проблемой, звукоизоляция является надежным способом для восстановления покоя в доме.
Прежде всего, нужно найти источник шума, а потом уже выбрать способ его устранения.
Часто вполне достаточно сделать звукоизоляцию потолка и пола, и в редких случаях может понадобиться защита всего помещения.
Способы звукоизоляции и используемые материалы
- Гипсокартон. Прежде чем устанавливать гипсокартонные плиты, необходимо тщательно заделать все щели в стенах, через которые может проникать шум. Потом стены заштукатурить.Установка гипсокартона имеет некоторые особенности. Например, если от стены исходит источник постороннего шума, к ней нельзя крепить каркас, так как через крепление каркаса звук все равно будет проходить в квартиру. Поэтому каркас рекомендуется устанавливать к потолку и полу около той стены, от которой исходит шум. К тому же, рекомендуется при монтаже каркаса использовать специальные резиновые прокладки, которые будут дополнительной преградой для шума.Щели между плитами заполняют монтажной пеной. Для надежности между плитами гипсокартона и основной стеной укладывается слой или два минеральной ваты или гипсоволокна.
- Эковата и панели ЗИПС. Панели крепятся к поверхности, обеспечивая надежную защиту от шума со стороны стен, пола и потолка. Для их монтажа нужно делать дополнительные отверстия. В сочетании с эковатой панели ЗИПС избавят квартиру не только от посторонних шумов, но и сохранят тепло в помещении.
- Потолочные панели. Служат отличным способом защиты от шума со стороны потолка. Широкий выбор цветовой палитры позволяет подобрать нужный вариант для гармоничности дизайна помещения. В основе потолочных панелей лежит базальтовое волокно, обеспечивающее надежную звукоизоляцию.
- Подвесной потолок. Система устройства подвесного потолка обладает акустическими свойствами, способными оградить квартиру от постороннего шума, доносящегося сверху.
- Рулонные строительные материалы. В основе таких материалов лежит специальная пленка со звукопоглощающими свойствами. Перед нанесением следует подготовить стену, поверхность которой должна быть гладкой и ровной. Материал крепится к поверхности Бустилатом.
Отчего зависит степень поглощения шума
Способность шумоглушителей эффективно устранять звуковые колебания зависит от нескольких факторов, которые нужно учитывать при монтаже этого оборудования:
- От размеров устройства. Стандартные размеры, которые имеет это приспособление, могут быть 60 см, 90 см и 1м 20 см.,/
- От толщины и расположения звукоизолирующего слоя.
- От скорости движения воздуха. Наилучшие показатели по устранению аэродинамических звуковых колебаний показываются на низких скоростях воздушных потоков.
- От месторасположения шумоглушительного устройства. Чем ближе оно расположено к вентилятору, тем лучше звукоизоляция в воздуховодах.
Заключение: тишина в деталях
- О планировке. Иногда, как бы мы ни старались улучшить звукоизоляцию в спальне, выходящей окнами на дорогу, уличный шум все равно не дает уснуть. Зато в гостиной, смотрящей во внутренний дворик, всегда тишина и покой. Так не лучше ли просто поменять их местами?
- О коврах. Медики грозят любителям ковровых покрытий с высоким ворсом и тяжелых портьер развитием аллергии или астмы. Послушав предостережения, многие ударяются в минимализм, и в их жилище не найдешь ни клочка ткани. Зато всегда можно поиграть в «эхо»… Возможно, стоит избрать некую золотую середину?
- О дверях. Звукоизоляцию внутренних стен дома мы уже обсудили, однако помимо стен там есть еще и межкомнатные двери. Качественная дверь с наполнителем из ДСП и синтетической ваты способна обеспечить звукоизоляцию до 46 дБ. Конечно, если она правильно установлена, и снабжена уплотнителем по всему периметру.
- О краске. При выборе отделки стоит отдавать предпочтение «дышащим» материалам с пористой структурой. И если в этом нет особой необходимости, то не стоит подвергать их окрашиванию. Большинство видов краски при нанесении забивает все поры, и превращают поверхность в глухую воздухонепроницаемую пленку, что ведет к снижению акустического комфорта.
- О домашних «врагах». Иногда проблемой становится не шум извне, а собственные огрехи при установке «трясущейся» бытовой техники, сквозные дыры электрических розеток, не закрытые заглушками. Обойдите свое жилище и подумайте, все ли причины шума вы устранили?

Надеемся, наша статья поможет вам сделать свой дом комфортным и уютным – настоящей тихой гаванью.


















































